
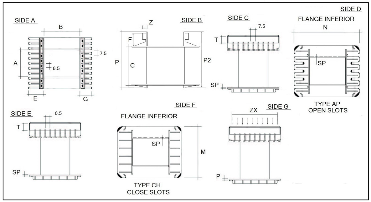
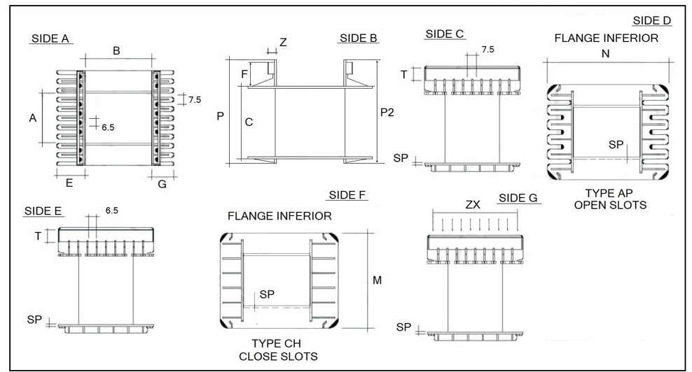
TIPO AP versione con flangia intermedia aperta e TIPO CH versione con flangia intermedia chiusa
TIPE AP open slots version flange inferior and TYPE CH close slots version flange inferior

TIPO/TYPE | ART.N. | A | B | C | D | H | SP | M | N | P | P2 | T | Z | E | G | ZX | F |
EI120/41,8 | 40,8 | 41,8 | 59,1 | 1,8 | 77,5 | 88,3 | 85,5 | 85,5 | 10 | 6,8 | 23,5 | 23,1 | 2X10 | 19,8 | |||
EI120/53,8 | 40,8 | 53,8 | 59,1 | 1,8 | 77,5 | 100,4 | 85,5 | 85,5 | 10 | 6,8 | 23,5 | 23,1 | 2X10 | 19,8 | |||
EI120/61,8 | 40,8 | 61,8 | 59,1 | 1,8 | 77,5 | 108,4 | 85,5 | 85,5 | 10 | 6,8 | 23,5 | 23,1 | 2X10 | 19,8 | |||
EI120/73,8 | 40,8 | 73,8 | 59,1 | 1,8 | 77,5 | 120,3 | 85,5 | 85,5 | 10 | 6,8 | 23,5 | 23,1 | 2X10 | 19,8 | |||
EI120/41,8 | 40,8 | 41,8 | 59,1 | 1,8 | 77,5 | 88,3 | 85,5 | 85,5 | 10 | 6,8 | 23,5 | 23,1 | 2X10 | 19,8 | |||
EI120/53,8 | 40,8 | 53,8 | 59,1 | 1,8 | 77,5 | 100,4 | 85,5 | 85,5 | 10 | 6,8 | 23,5 | 23,1 | 2X10 | 19,8 | |||
EI120/61,8 | 40,8 | 61,8 | 59,1 | 1,8 | 77,5 | 108,4 | 85,5 | 85,5 | 10 | 6,8 | 23,5 | 23,1 | 2X10 | 19,8 | |||
EI120/73,8 | 40,8 | 73,8 | 59,1 | 1,8 | 77,5 | 120,3 | 85,5 | 85,5 | 10 | 6,8 | 23,5 | 23,1 | 2X10 | 19,8 |