
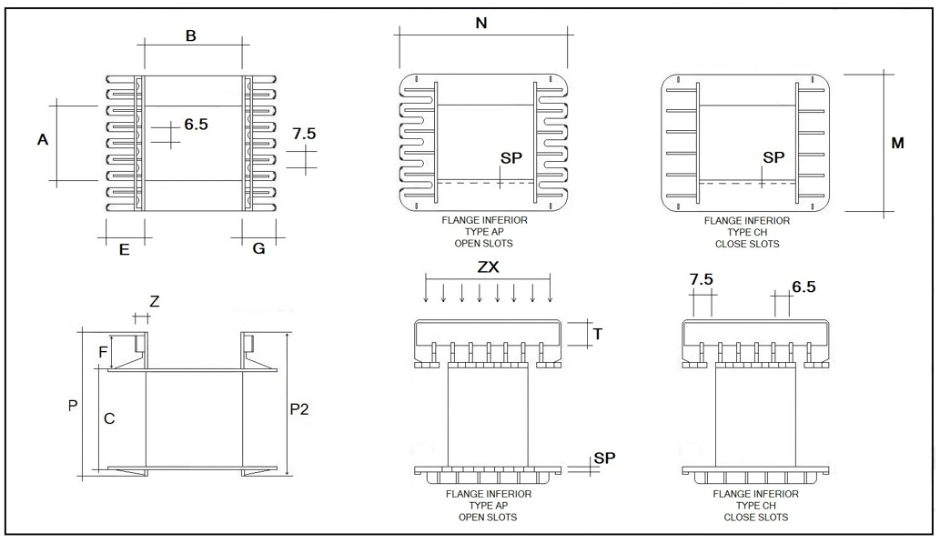
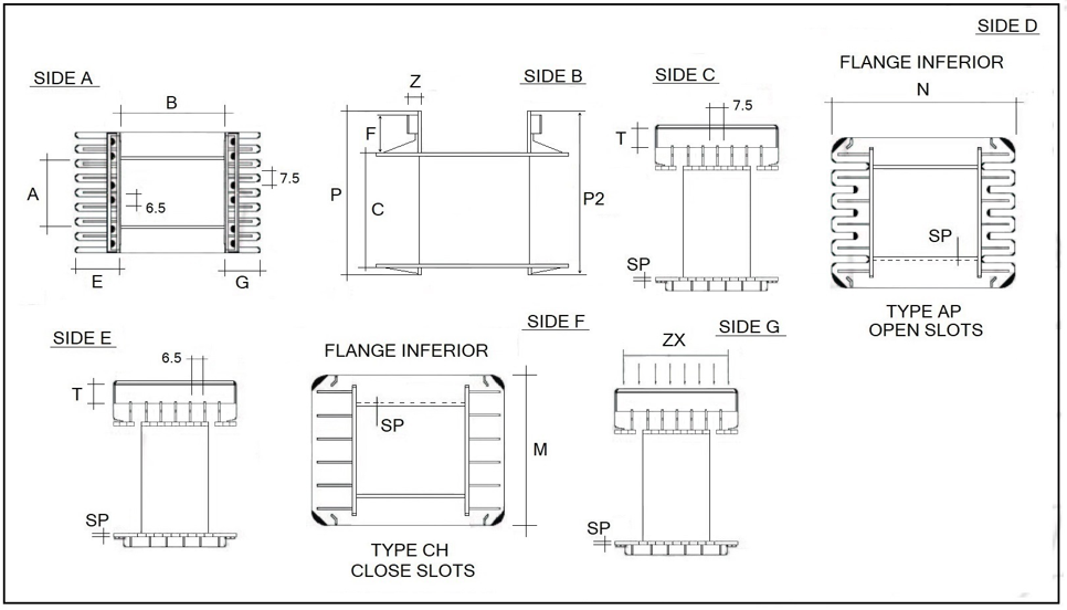
TIPO AP versione con flangia inferiore aperta e TIPO CH versione con flangia inferiore chiusa
TYPE AP open slots version flange inferior and TYPE CH slots version flange inferior

TIPO/TYPE | ART.N. | A | B | C | D | H | SP | M | N | P | P2 | T | Z | E | G | ZX | F |
EI96/35,7 | 32,7 | 35,7 | 47,2 | 1,7 | 62,5 | 70,3 | 71,3 | 71,3 | 10 | 6,8 | 18,3 | 15,8 | 2X8 | 17,5 | |||
EI96/45,7 | 32,7 | 45,7 | 47,2 | 1,7 | 62,5 | 80,3 | 71,3 | 71,3 | 10 | 6,8 | 18,3 | 15,8 | 2X8 | 17,5 | |||
EI96/59,7 | 32,7 | 59,7 | 47,2 | 1,7 | 62,5 | 94,3 | 71,3 | 71,3 | 10 | 6,8 | 18,3 | 15,8 | 2X8 | 17,5 | |||
EI96/35,7 | 32,7 | 35,7 | 47,2 | 1,7 | 62,5 | 70,3 | 71,3 | 71,3 | 10 | 6,8 | 18,3 | 15,8 | 2X8 | 17,5 | |||
EI96/45,7 | 32,7 | 45,7 | 47,2 | 1,7 | 62,5 | 80,3 | 71,3 | 71,3 | 10 | 6,8 | 18,3 | 15,8 | 2X8 | 17,5 | |||
EI96/59,7 | 32,7 | 59,7 | 47,2 | 1,7 | 62,5 | 94,3 | 71,3 | 71,3 | 10 | 6,8 | 18,3 | 15,8 | 2X8 | 17,5 |