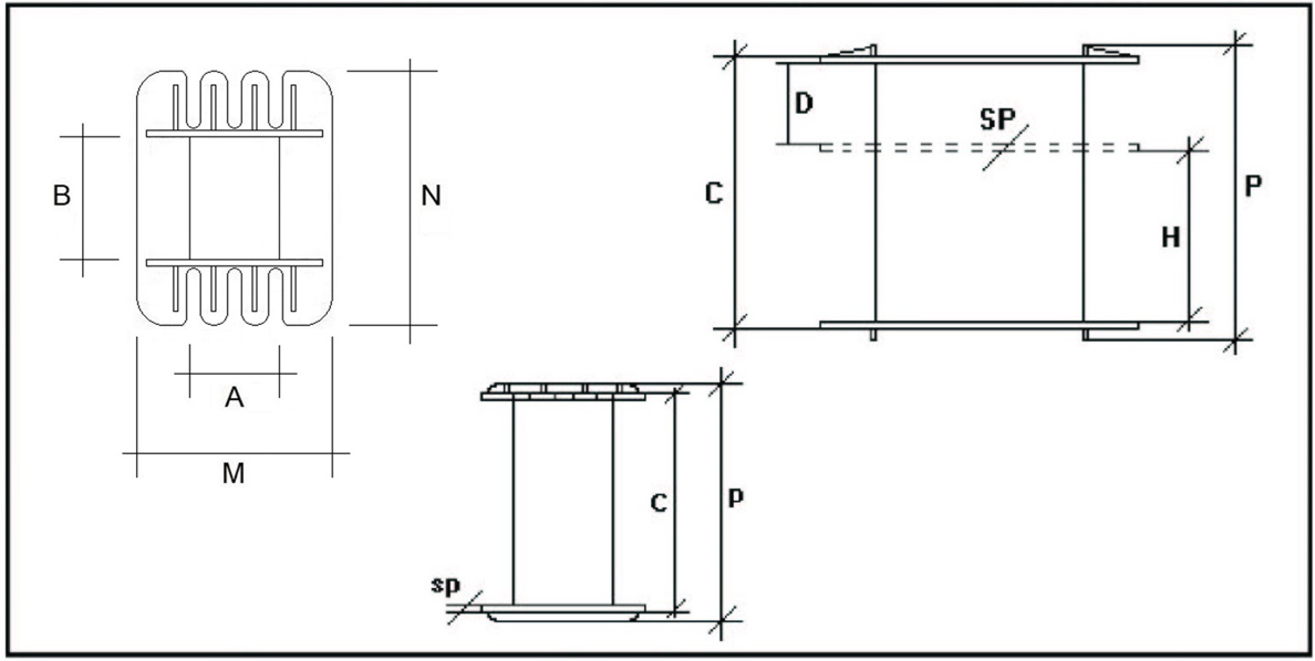
UI 66

LAMIERINO 100X100

LAMINATION 100X100

TIPO/TYPE

ART.N.

A

B

C

D

H

SP

M

N

P

UI66/30

 1303

23,6

30,0

66,0



1,5

54,5

68,0

74,0

UI66/40

 1304

23,6

40,0

66,0



1,5

54,5

74,0

74,0

UI66/45

1305

23,6

45,0

66,0



1,5

54,5

80,0

74,0